Conectado como:
filler@godaddy.com
Conectado como:
filler@godaddy.com
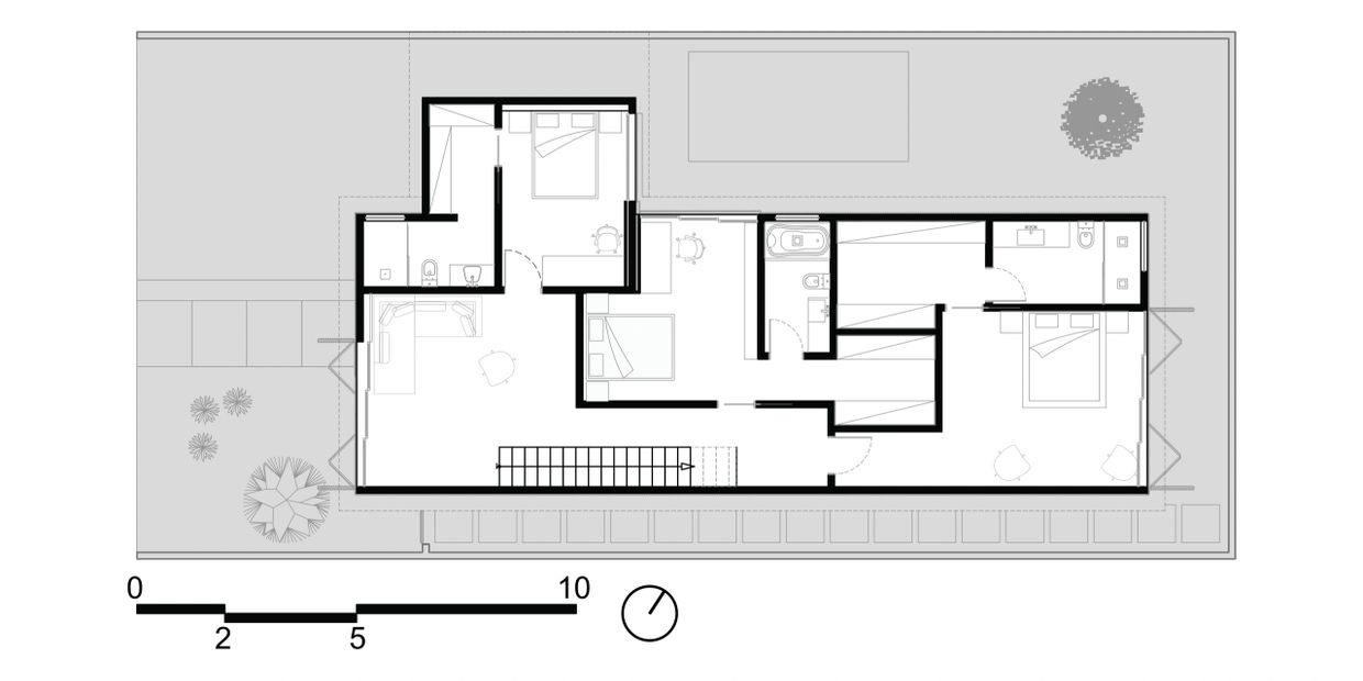
A Casa EN2L, mostra na simplicidade formal toda a sua beleza e elegância.
Entre todas as diretrizes do programa, o principal desejo da família era de ter uma casa aberta e com espaços integrados favorecendo o convívio do dia-a-dia, para isso utilizamos uma implantação longitudinal, gerando um grande espaço livre na face norte do terreno, favorecendo a insolação, para a área de lazer.
O programa apresentado é composto por dois pavimentos, no térreo ficam a garagem, área de serviço, despensa e um grande salão principal, onde estão salas de jantar e estar e a cozinha todos integrados a área de lazer. No piso superior está instalada a área intima, com uma sala de TV e três suítes.
Localização: Jacareí-SP
Área: 215m²
Ano do projeto: 2015
Prêmio Estilo Design 2018

