Conectado como:
filler@godaddy.com
Conectado como:
filler@godaddy.com
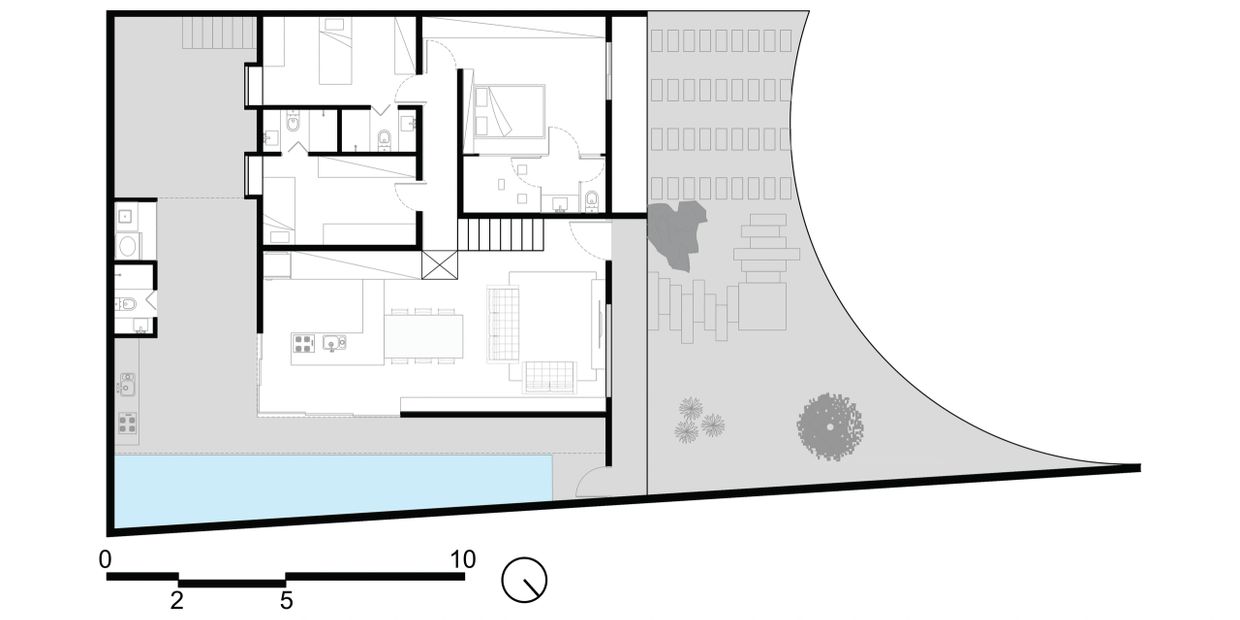
Enfrentar o desafio de criar um projeto de fácil execução e construção rápida, sem depender de grandes escadas, foi a principal meta do projeto. Localizado no terreno ao fundo do condomínio, que apresentava um leve aclive, optamos por utilizar essa inclinação como ponto de partida para resolver as questões centrais.
A adaptação inteligente ao terreno não apenas simplificou a execução, mas também proporcionou uma integração natural do projeto com o ambiente circundante, criando uma residência acessível, eficiente e harmoniosamente enraizada em seu entorno.
Localização: Jacareí-SP
Área: 205m²
Ano do projeto: 2017

