Conectado como:
filler@godaddy.com
Conectado como:
filler@godaddy.com
O lote em um dos pontos mais altos do condomínio foi o ponto fundamental para a tomada de decisão do partido da casa Apuã, o projeto arquitetônico se desenvolveu com base em 3 premissas essenciais: garantir vistas privilegiadas, preservar a maior área possível para jardins e gramados, além de minimizar a movimentação de terra afim de preservar a integridade do perfil original do terreno.
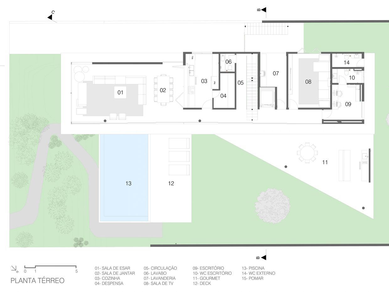
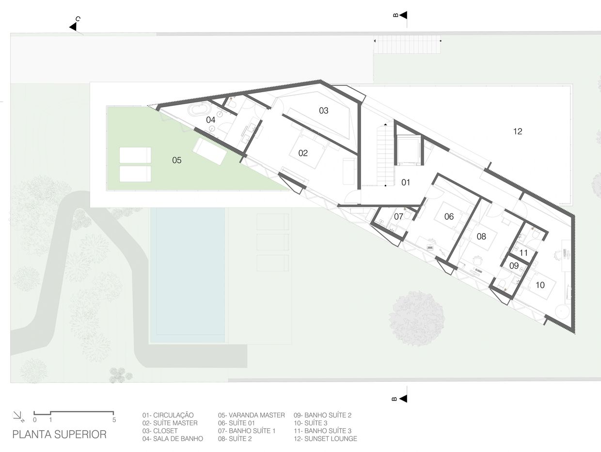
Organizada em 3 pavimentos, o subsolo abriga a garagem, hall de acesso e área técnica, no térreo estão o living, sala de jantar, cozinha, sala tv, escritório, área gourmet e área de lazer. No pavimento superior estão as 4 suítes e uma grande varanda de uso comum com vista para o pôr do sol.
Localização: São José dos Campos-SP
Área: 830m²
Ano do projeto: 2020
Prêmio Estilo Design 2023
Prêmio Polo - Troféu Olga Krell 2023


